L’INDUSTRIEL et SA DEMANDE 

Spécialisée dans la fabrication de matériel de distribution et de commande électrique basse tension.
En Octobre 1990 un ami me présente le responsable de l’entreprise SAMEC qui cherche à renouveler son entreprise par un bâtiment nouveau.

LE PROJET EN 2 VERSIONS EST PROPOSE 

Deux versions furent proposées qui s’expriment par la production de 2 façades sur entrée principale avec les plans des 2 niveaux, la coupe longitudinale.

DESCRIPTION
L’intérieur du projet comporte des lieux divers liés à la nature de l’entreprise.
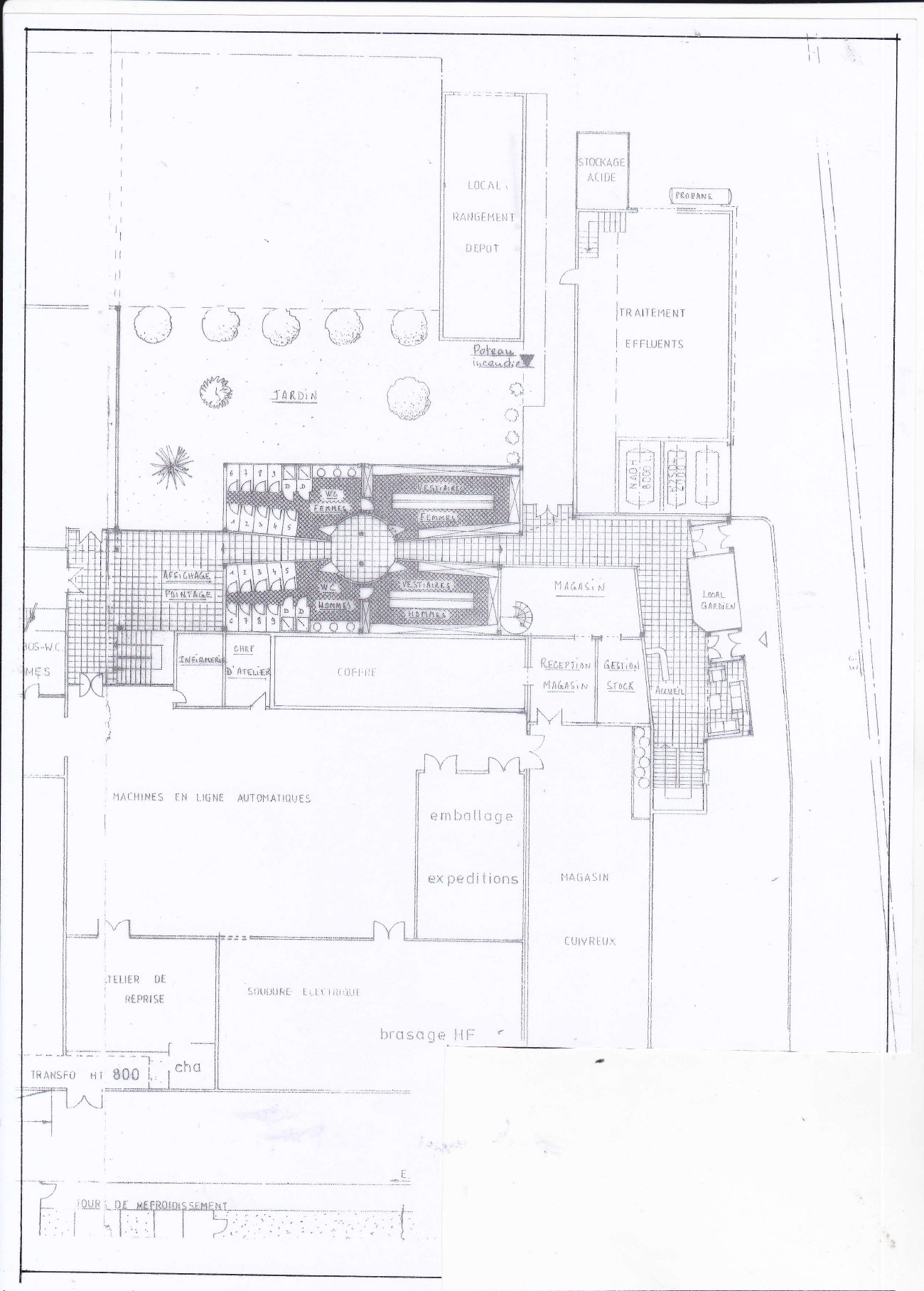
Au rez de chaussée on passe par l’accueil qui dirige vers la zone vestiaires femmes et hommes et les lieux de sanitaires pour aller vers le lieu des machines, soudure électrique, etc.
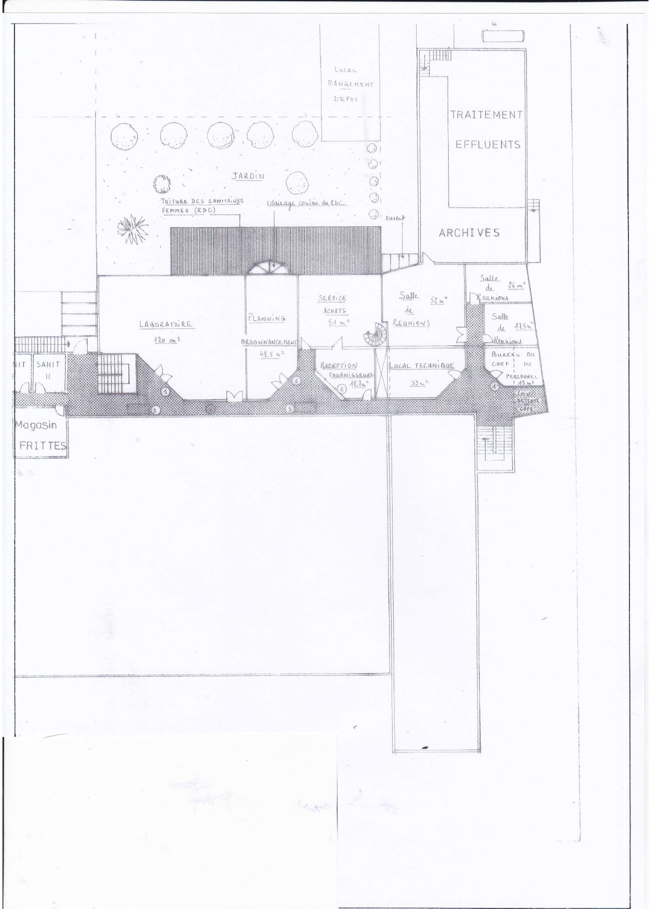
A l’étage on trouve les bureaux, le laboratoire, salle de réunions, le local archives, etc ; des escaliers relient les 2 niveaux.
Le projet n’a pas été réalisé car l’entreprise a été fermée en 1993 par son r attachement à une plus importante, Métalor Technologies France, dans la même ville .Celle-ci a arrêté depuis son activité .