Rencontre et visite de l’appartement 

Un appel téléphonique d’une personne pour qui j’ai déjà travaillé me demande de venir visiter un appartement que viennent d’acheter son fils et sa belle fille, Boulevard Delessert prés de la Tour Eiffel et proche de la place ronde du Costa Rica ; secteur urbanisé pour l’exposition universelle de 1900 ,la cinquième .
Nous le visitons car ses enfants encore à Londres sont en train de déménager pour pouvoir revenir en France et s’y installer après travaux dans cet appartement ; ils ont trois jeunes enfants .

L’appartement et le programme

L’appartement est grand autour de 200 m2 ; il n’a pas reçu d’embellissement ni travaux importants depuis des décennies. Tout est daté. Il y a une belle hauteur sous plafond de 3.50 m ce qui permettra d’être utile pour des équipements et bien sur de donner une qualité spatiale pour certaines pièces .
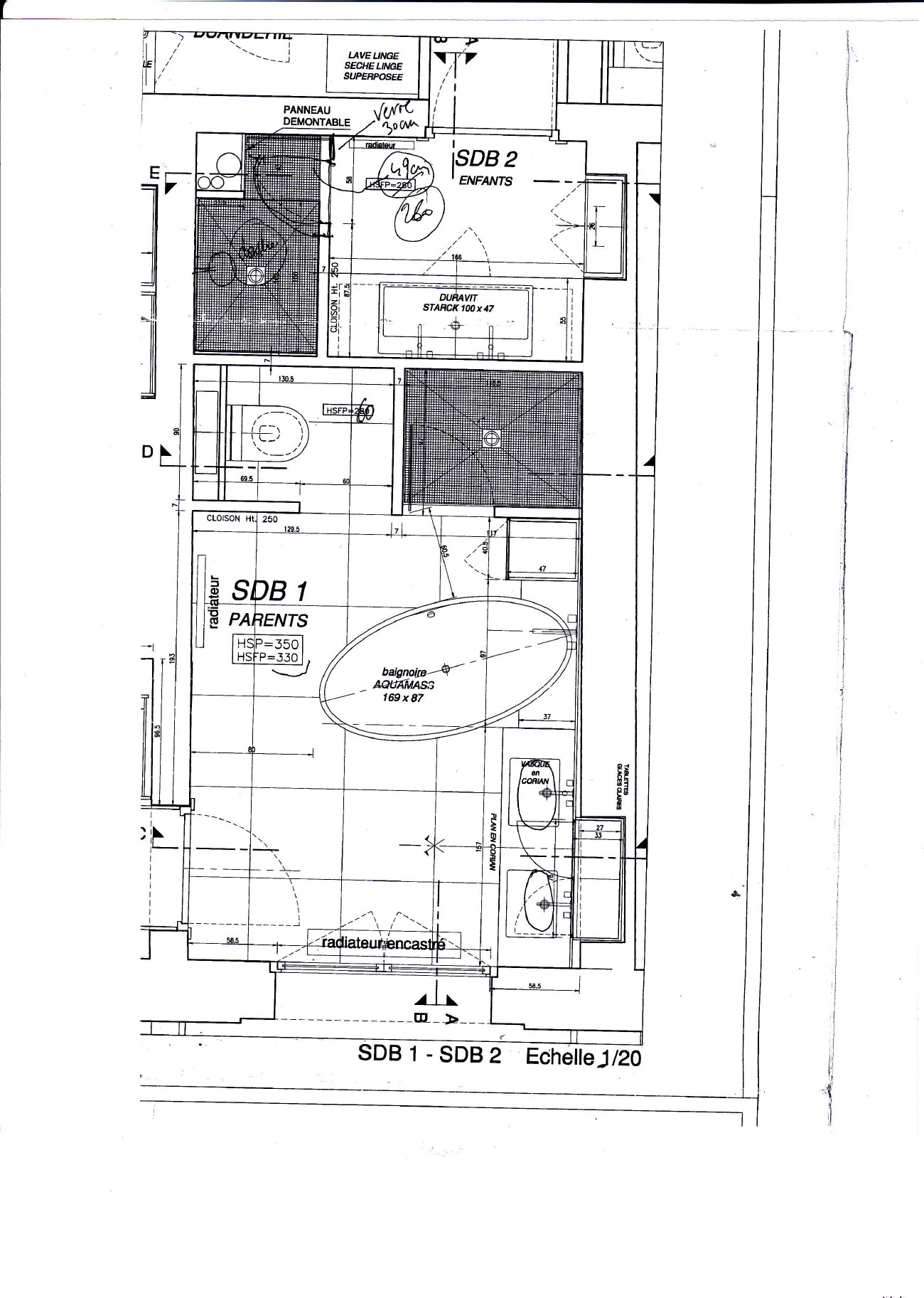
Lors de ma rencontre avec son fils Robin et sa femme le programme est énoncé: il faut, hors cuisine, salon/salle à manger : 3 chambres pour les enfants une suite parents avec un bureau/chambre d’amis ,2 S.de B. avec WC ,1 S de douche, buanderie, rangements et bibliothèques, cuisine nouvelle avec espace pour prendre des repas.

Le projet et le chantier

Le délai pour mener à bien l’ensemble des travaux est fixé à 5 mois.
Pour mener à bien le futur chantier je demande à une consœur architecte  de m’accompagner car j’ai d’autres projets et je me suis mis à voyager souvent

Au départ le programme dans la partie des chambres, couloir, salle de bains est étudié en différentes possibilités tel que la suite parental coté cour immeuble et 2 chambres enfant coté Bd Delessert et une coté cour. A la fin -c’est la solution 3 chambres enfants sur cour qui est choisie et la suite parental coté boulevard.
Sur le plan technique j’ai alors proposé de faire disparaître les radiateurs dans le sol devant les fenêtres, ce qui a pu se faire après sondage en démontant le parquet . Mise en œuvre de Double vitrages à toutes les fenêtres.
La hauteur du plafond de 3.50m permettra de construire des mezzanines dans les chambres enfants pour libérer le sol des chambres.

Au niveau du couloir d’installer 3 chauffe-eaux électriques horizontaux, de la filerie, des gaines de ventilation, etc.

Le dossier plans et photos des lieux finis et au départ

LE DOSSIER PRÉSENTE LES PHOTOS PRISES APRES INSTALLATION DE LA FAMILLE DANS LES LIEUX FINIES ,le plans d’ensemble établi à partir du fichier informatique du géomètre, le plan d’origine donné lors de la vente de l’appartement qui montre l’occupation ancienne ,les plans d’étude préalable à la solution arrêtée, les dessins des divers rangements dans le couloir ,les 2 bibliothèques ,les chambres enfants avec mezzanine ,la cuisine ,etc.
Des photos du chantier et quelques photos de l’état des lieux.
Excellentes entreprises toujours présentes.