Contenu du projet

Cet appartement sur 2 niveaux est dans le programme de réhabilitation de l’immeuble décrit dans un autre dossier sur les travaux menés et notamment sur le rendu des parties communes.

Dans le projet global au départ il y avait un magasin/boutique sur les 2 niveaux inférieurs et au-dessus 2 duplex et 3 logements et 1 Atelier.

Description

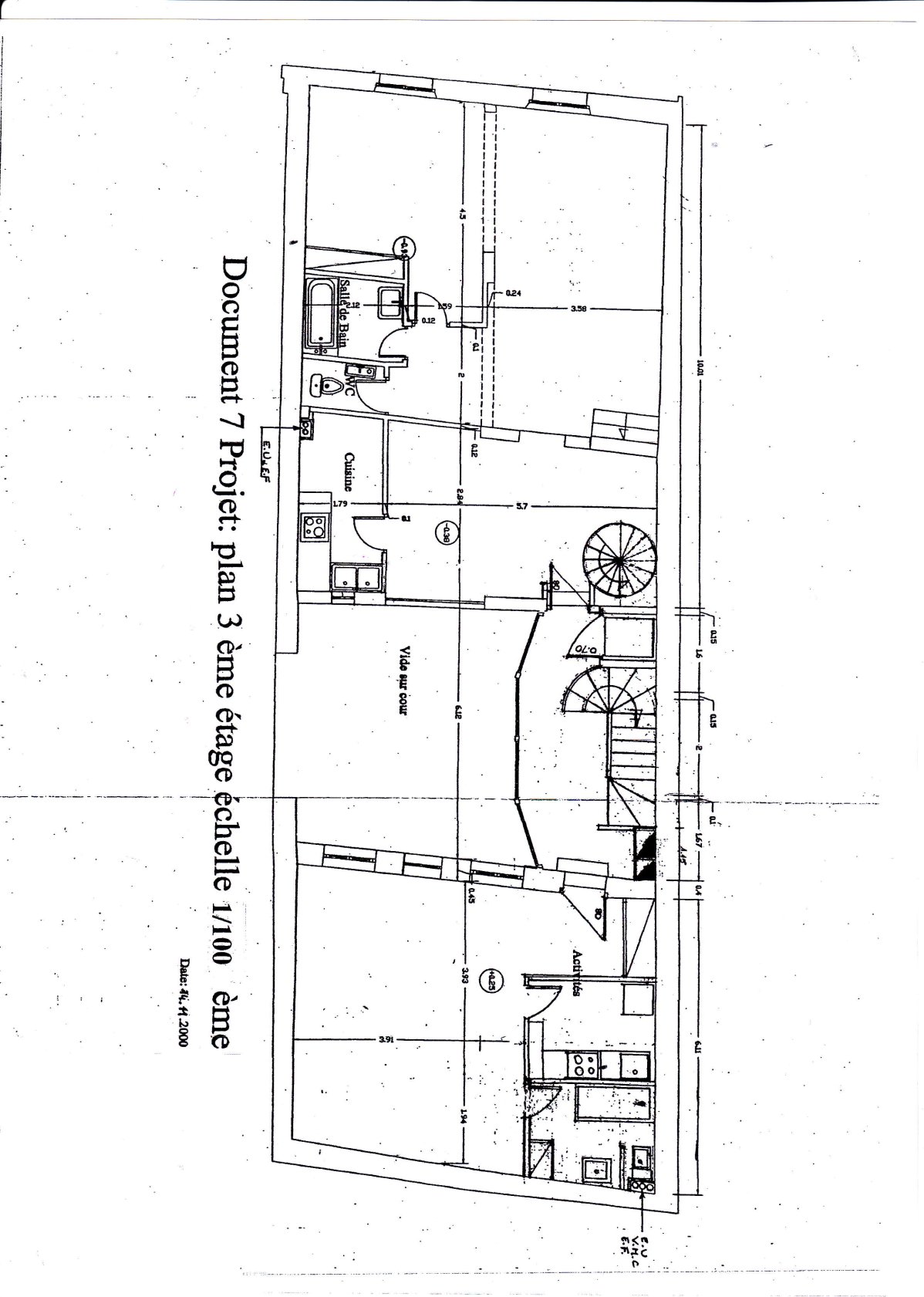
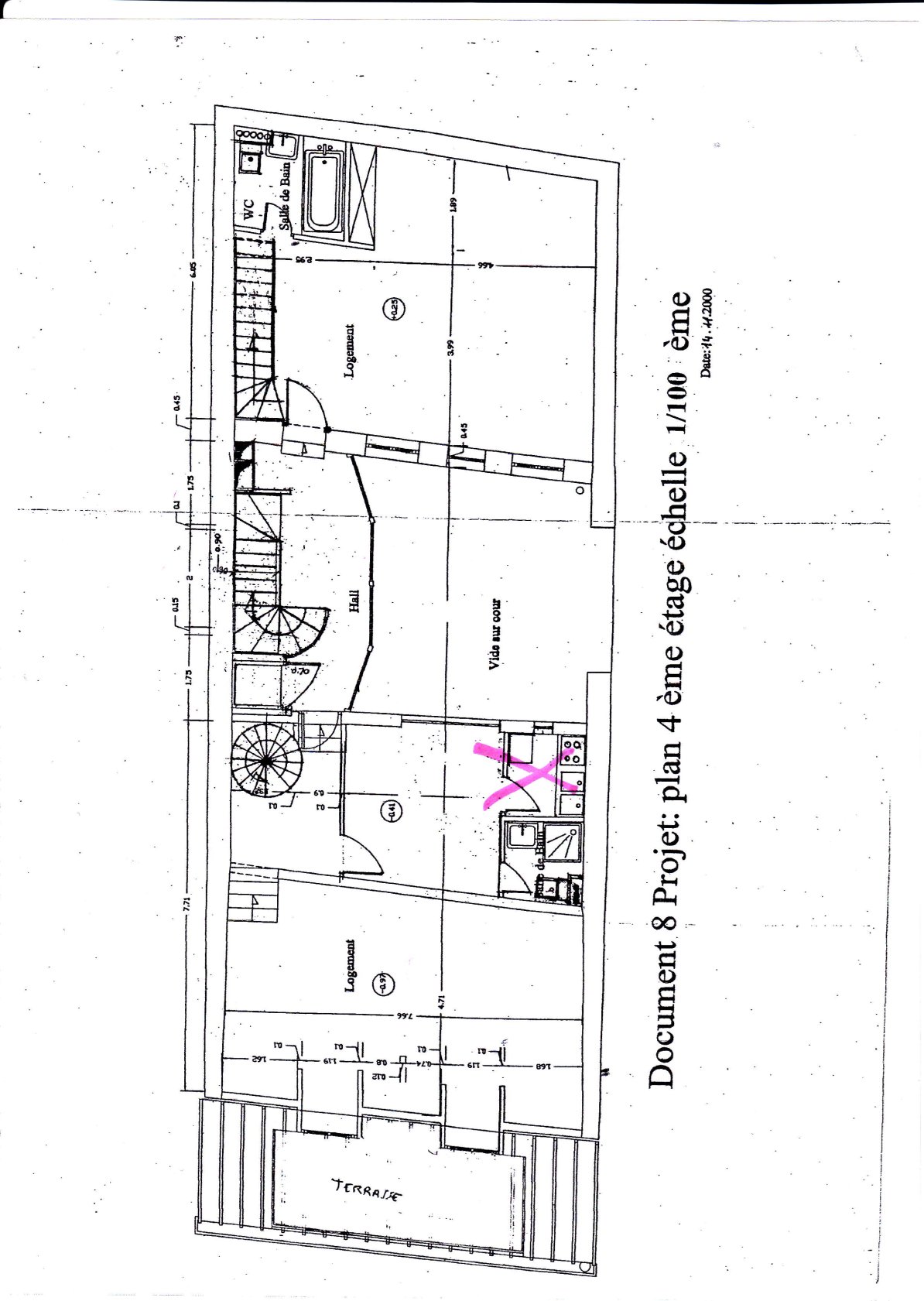
Ici nous décrivons le duplex situé sur rue au 3/4éme étage sur rue de 125 m2 avec une terrasse sur rue. L’appartement est double exposition sur cour et sur rue.

Depuis le palier vitré sur cour d’arrivée chaque étage est accessible par une porte palière pour permettre une adaptation fonctionnelle en terme d’usage comme pouvoir louer une partie et habiter l’autre. C’est ce qui est arrivé au début et qui peut revenir.

L’appartement au 4éme s’ouvre sur une entrée avec l’escalier puis à gauche vers un bureau/chambre d’appoint avec douche et toilettes, en avant une assez grande pièce sur rue avec son pan de toiture inclinée avec. 2 fenêtres et châssis vitrés sur toute la façade pour se prolonger par une terrasse avec table et chaises pour les bons moments et aujourd’hui 2 palmiers et chèvrefeuille et jasmin en bacs.

En prenant l’escalier hélicoïdal on arrive au 3éme avec la même entrée avec porte palière qui distribue à gauche une chambre sur cour avec sa douche et WC et en avant sur rue une salle à manger avec cuisine avec fenêtre ouverte sur cet espace qui forme un tout. D’où une cuisine non confinée bien que de taille réduite mais très fonctionnelle. Une circulation  amène à une chambre séparable par porte coulissante ,une salle de bains et des toilettes séparées.

Point Technique

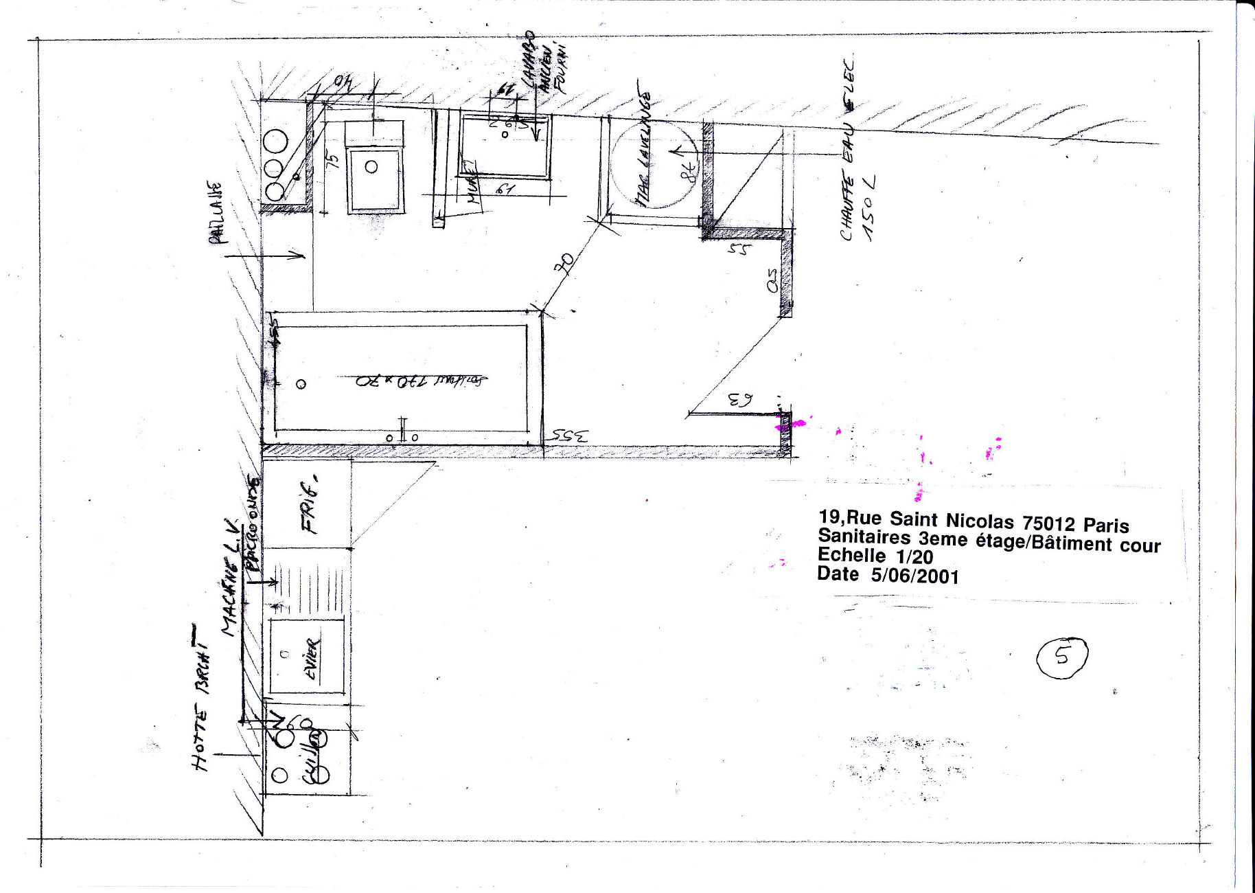
Sur le plan technique au 4éme étage une grande partie des parois et toiture ont été isolées, toutes les parois vitrées sont à double vitrages de qualité bois ou métalliques. Le chauffage est par chaudière gaz individuel, le sol des pièces est en parquet bois, les 3 salles d’eau ou bains, WC sont en pâte de verre, sol partout et murs et même plafond a 4éme étage.

Mobiliers

Les meubles et sièges sont d’origine diverses, les meubles métalliques ont été dessinés par moi-même dans le séjour/salon et une double bibliothèque en métal a été trouvée aux puces de Clignancourt.

Dossiers photos et plans

Des photos d’auteur ou non et tableaux sont sur les murs un peu partout, tapis du Maroc ou d’ailleurs sont au sol par endroit.

Le dossier commence par photos des lieux habités par l’arrivée au 4éme étage sur le palier transparent vers la cour fermée par son claustra métallique blanc, succèdent des photos du séjour/salon avec la terrasse et le bureau sur cour avec sa salle de douche et WC.

Au 3éme la salle à manger, cuisine, chambre et salle de bains pour s’achever après des documents graphiques sur l’état des lieux à l’origine et les étapes de la reconstruction.

Appartement 2 pièces pour location

Il est ajouté quelques éléments photos et graphiques, des 2 pièces destinées à être loués.

Appartements 2 pièces pour location