L’appartement au dernier étage ,le programme 

Il s’agit d’un appartement situé au dernier étage avec une terrasse au-dessus mais mal accessible directement entourée de verdure et arbres sur 2 cotés avec un parking et cave en sous-sol.
Il s’agit d’un réaménagement complet avec la création d’une trémie pour un escalier tournant afin de réaliser un duplex pour accéder à la terrasse avec création d’une pièce et aménagement complet de la terrasse avec plantations ,arrosage automatique ,placards divers .
La surface habitable est de 115m2 et de 80m2 de terrasse.

Le projet réalisé

Le travail a été fait en collaboration avec une décoratrice pour certains choix.
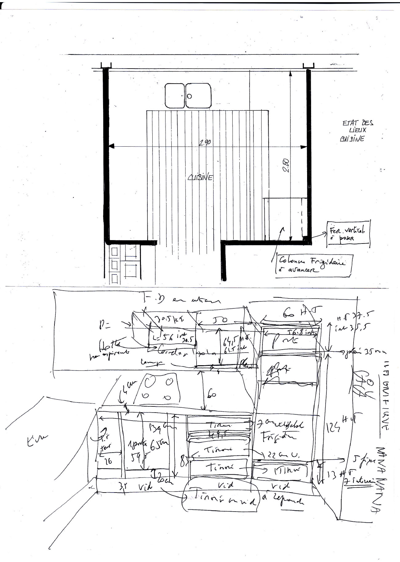
Le délai a été de 5 mois du 1″ juin à fin octobre 1993. Le dossier présente une description des choix arrêtés, des photos des principaux espaces et des plans et croquis réalisés et quelques photos de l’état des lieux, L’immeuble est tout à fait d’esprit « Le Corbusier » avec notamment de grandes baies vitrées. par contre, la terrasse, séparée de l’appartement, au dernier niveau n’avait à l’origine reçu aucun aménagement pour en faire un lieu de vie. Au départ, la terrasse n’était accessible que par l’extérieur. D’où les travaux conséquents pour créer un escalier à travers la structure béton et créer un espace très transparent mais clos, entouré par les plantations de la terrasse.
D’autre part, la liaison séjour/terrasse, pour être visible tout en générant un espace séjour plus ample à entraîner la suppression des cloisons d’une chambre pour faire un volume global. L’implantation de l’escalier, après plusieurs études, s’est décidée sur une partie qui jouxte la cuisine.
L’intensité de la lumière et une envie d’ailleurs ont donné libre cours à la couleur dans des applications très élaborées : enduit coloré à la spatule avec cire allant du rouge pompéien à un vert amande très clair.
Le réaménagement complet des espaces, salle de bains, douche, ont été l’occasion d’utiliser la pâte de verre partout sur les murs, le sol, le plafond ; sur le mobilier dessiné.
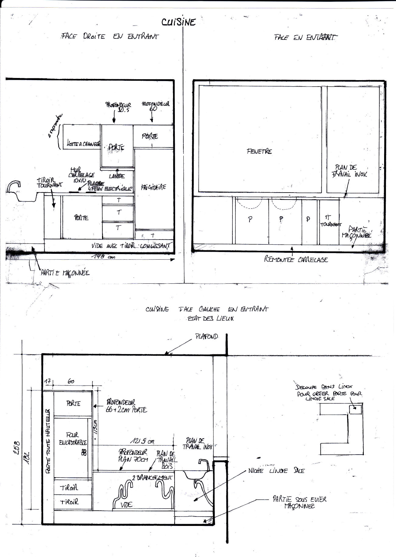
La cuisine a été pensée, colorée, ludique, mais pratique avec un sol en parquet teinté et vernis.
Pour gagner de la place, un ensemble de portes coulissantes a été créé à la place des portes d’origine, peu pratique. C’est aussi un clin d’œil à Le Corbusier.
Le couloir, lieu de passage et de distribution a donné lieu à la réalisation d’une toile peinte par un artiste pour en faire un événement.

Plans et documents ,photos

Partout des meubles spécifiques ont été dessinés : bibliothèque, armoire, rangement. Du sur mesure. Au final, l’appartement duplex comporte un grand séjour, 3 chambres, 1 pièce bureau, 1 terrasse plantée de 80 m2 avec arrosage automatique.
La terrasse a été entièrement conçue à partir du même bois traité pour le sol, les habillages, les bacs des plantations : du pin traité à l’autoclave qui lui confère une jolie couleur claire, moins dur que les bois imputrescibles comme l’lroko ou le teck.
Le sol de la terrasse est un ensemble de caillebotis de 1,00 x 2,00 m monté sur vérins, posé par dessus le carrelage un peu vieillot et abîmé.
Une salle à manger d’été est aménagée en plein air avec un velum, elle continue en fait l’espace clos transparent muni d’une porte vitrée totalement dépliable. La courbure du cercle a été reprise plusieurs fois, tant au niveau des meubles que de l’escalier en bois massif acajou teinté comme le parquet et les boiseries.