Le contexte :2 appartements superposés en 1982

Faire un appartement avec 2 superposés dans une copropriété de 1955 c’est une histoire qui arrive lorsque  l’un des 2 appartements est déjà occupé (ici au rez de chaussée) et qu’au-dessus l’autre se libère par un hasard bienvenu car les deux personnes sont liées par une histoire récente.
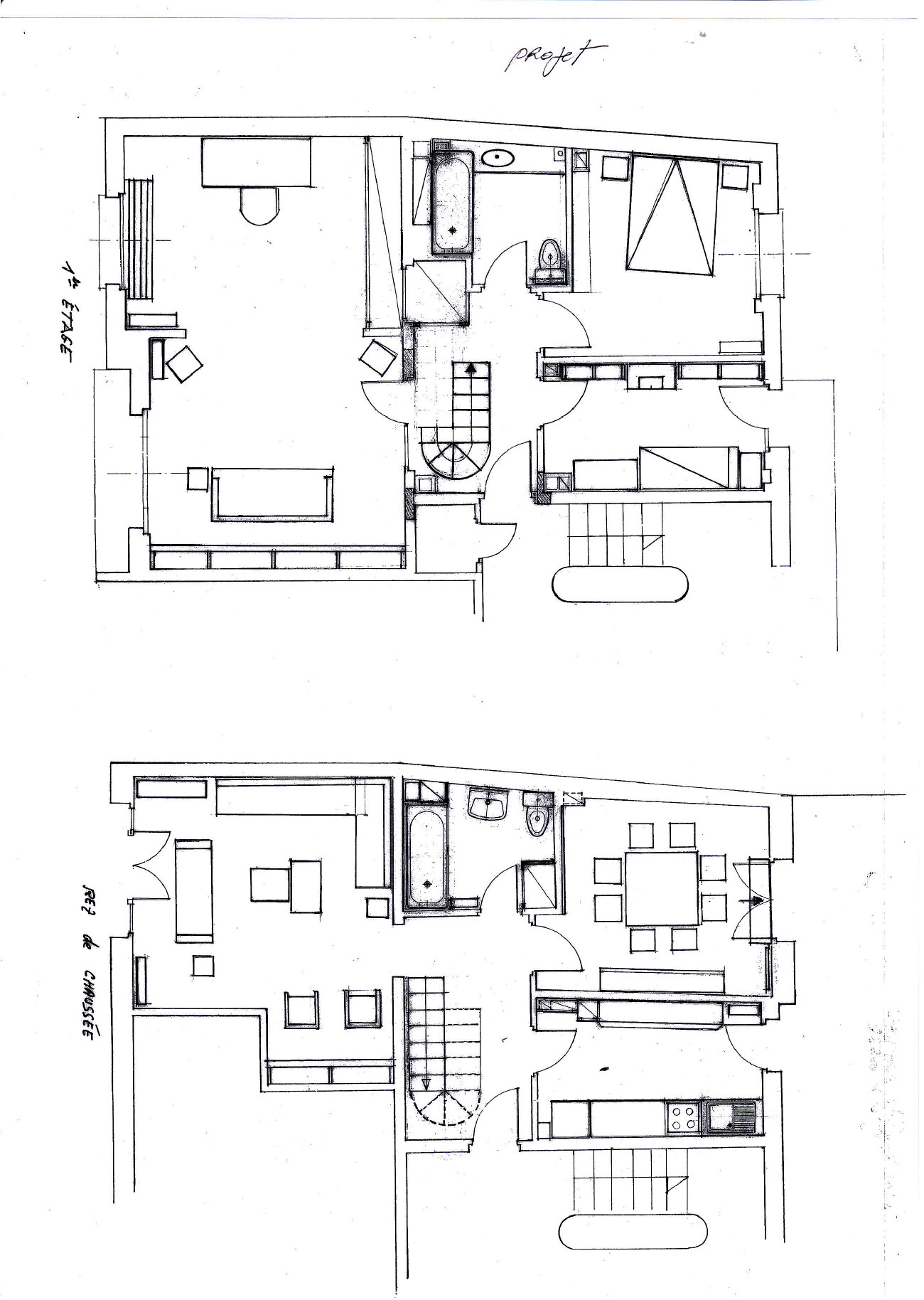
Ainsi après accord de la copropriété pour relier les 2 par un escalier métallique peut se réaliser le projet. Il existe en plus une petite chambre au rez de chaussée accessible par la cuisine en contact avec la terrasse arrière .Le couple aura ici un enfant dont la chambre sera installée à la place de la cuisine au-dessus de celle du rez de chaussée.

Documents 

Le dossier présente photos, plans et croquis …