C’est mon premier chantier. Nous sommes en 1979.

Il s’agit de réunir deux appartements de 45m2 dans un immeuble haussmannien prés de la place Saint Germain des prés dont j’occupe une partie .

A l’époque je voyage en Algérie au sud a Ghardaïa et dans des oasis Timimoune et El Golea puis au Maroc un grand tour en voiture à une période de l’été où Le Ramadan avait lieu cette année là.
Je souhaitais une ambiance où le sol me rappelle le sable du désert et dans une chambre un plafond et murs avec un papier peint bleu proche d’un bleu du ciel.

Rassembler deux appartements avec entrée commune

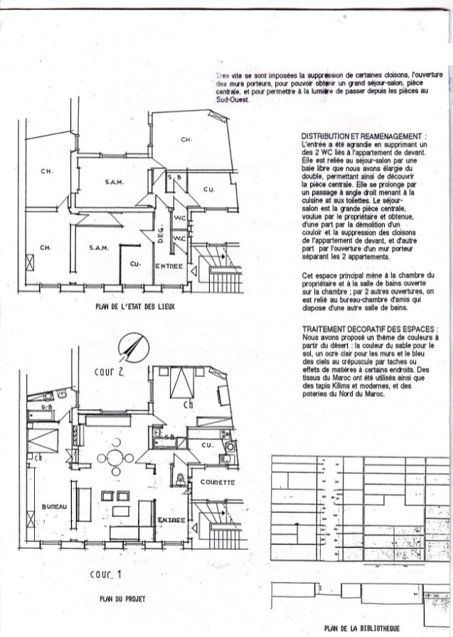
Avant il faut restructurer les 2 appartements par ouverture dans deux murs porteurs, créer 2 salles de bains pour 2 chambres , aménager l’entrée commune d’origine pour n’en faire plus qu’ une en démolissant un WC .
J’ai fait appel à un ami peintre Fadier pour me concevoir une grande fresque sur le mur de l’entrée qui fait disparaitre la double porte palière et face à elle, un miroir sur tout le mur. Son thème, à ma demande, fut orienté sur le soleil et sa lumière, son énergie .
Le mur des toilettes a été recouvert de partitions musicales de Mozart, cuisine nouvelle a été réalisée .

L’une des salles de bains a été recouverte de liège ,plafond compris ainsi que le sol ;la seconde salle de bains a été installée dans une alcôve ouverte sur la chambre .

Le sol fut du sisal qui donne un ton chaleureux .

Sur les murs la peinture fut un rendu à l’éponge dans un ton beige ,ce qui donna un effet heureux .
Peu de photos ont été prises car à l’époque je n’étais pas à me soucier de ça bien que son importance se soit imposée surtout pour le monde extérieur .

Documents

Le dossier comporte des planches de plans et photos et des croquis d’ambiance de certaines parties de l’appartement.