L’origine de l’étude
FORTUITEMENT EN CHERCHANT UNE AGENCE IMMOBILIERE QUARTIER RUE MOUFFETARD A PARIS 75005, J’EN TROUVE UNE PRES DES GOBELINS .LE TEMPS PASSANT IL ME CONTACTE POUR ME FAIRE RENCONTRER UNE COMMERCANTE PROCHE DE SON AGENCE QUI POSSEDE UN TERRAIN OCCUPE PAR UN ENTREPOT RUE GAGER GABILLOT PARIS 75015 AFIN DE ME PROPOSER D’ETUDIER << free lance >> UN PROJET IMMOBILIER.
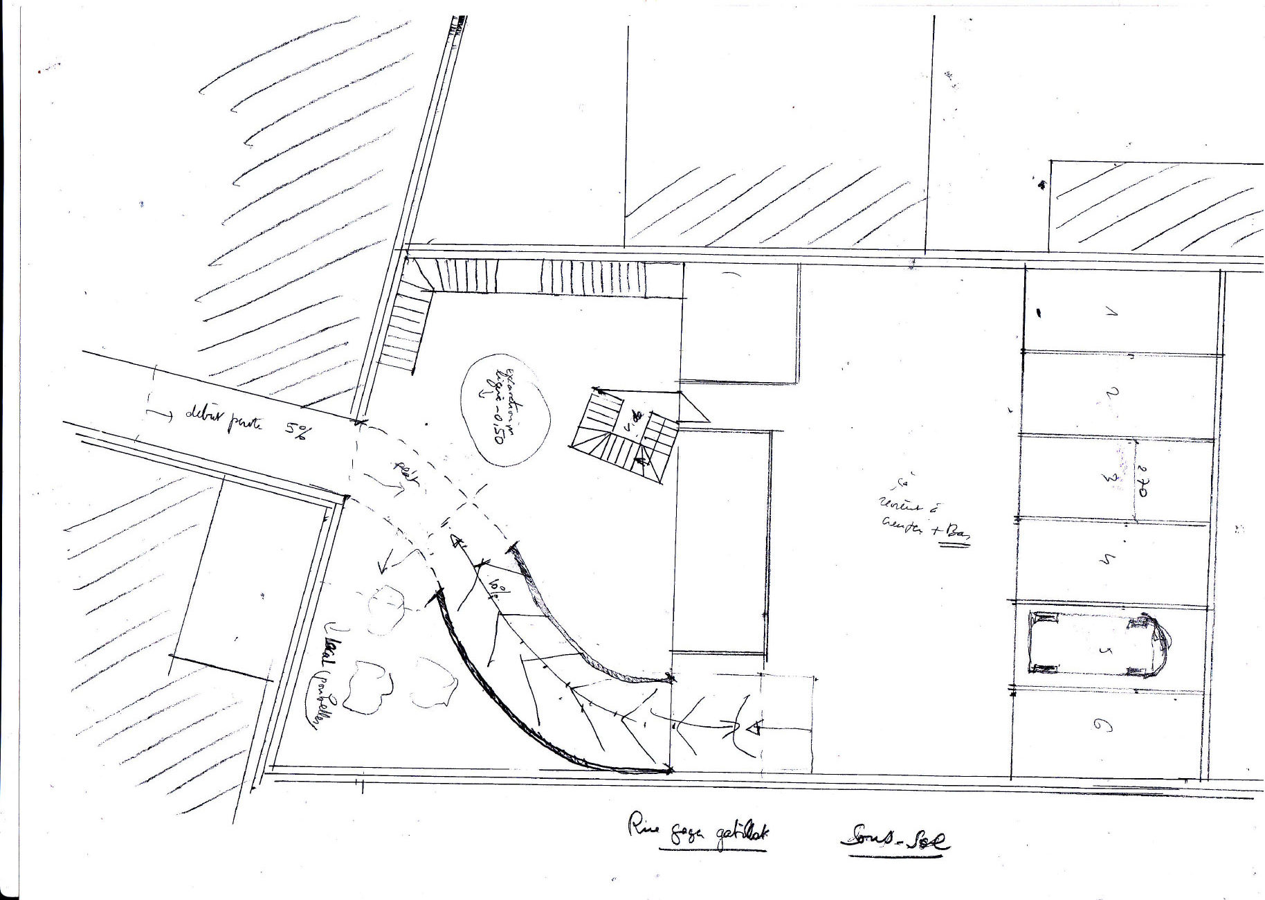
APRES UNE VISITE SUR PLACE DU LIEU JE ME RENDS COMPTE DE LA LARGEUR ASSEZ ETROITE DE L’ACCES A LA PARCELLE .ELLE N’EST PAS SUR RUE .IL FAUT PASSER ENTRE DEUX MASSES BÂTIES POUR Y ACCÉDER.
Un rendez-vous avec l’architecte voyer des services de l’urbanisme, avec les documents, permet de préciser les limites constructives compte tenu des hauteurs vis-à-vis des tiers.
Projet proposé et approuvé par l’architecte voyer
Je dresse donc un avant projet que je montre à la propriétaire avec un nouveau rendez-vous chez l’architecte voyer pour qu’elle entende la discussion.
Après pour aller plus loin il faut un promoteur dans ce cas, faire une fiche financière avec un prix du terrain et des lots à construire .La commerçante fut beaucoup trop gourmande :le beurre et l’argent du beurre. Je me retire.
On n’imagine pas l’attitude vulgaire de biens des gens qui considère l’architecte comme un pantin juste bon à travailler pour rien.
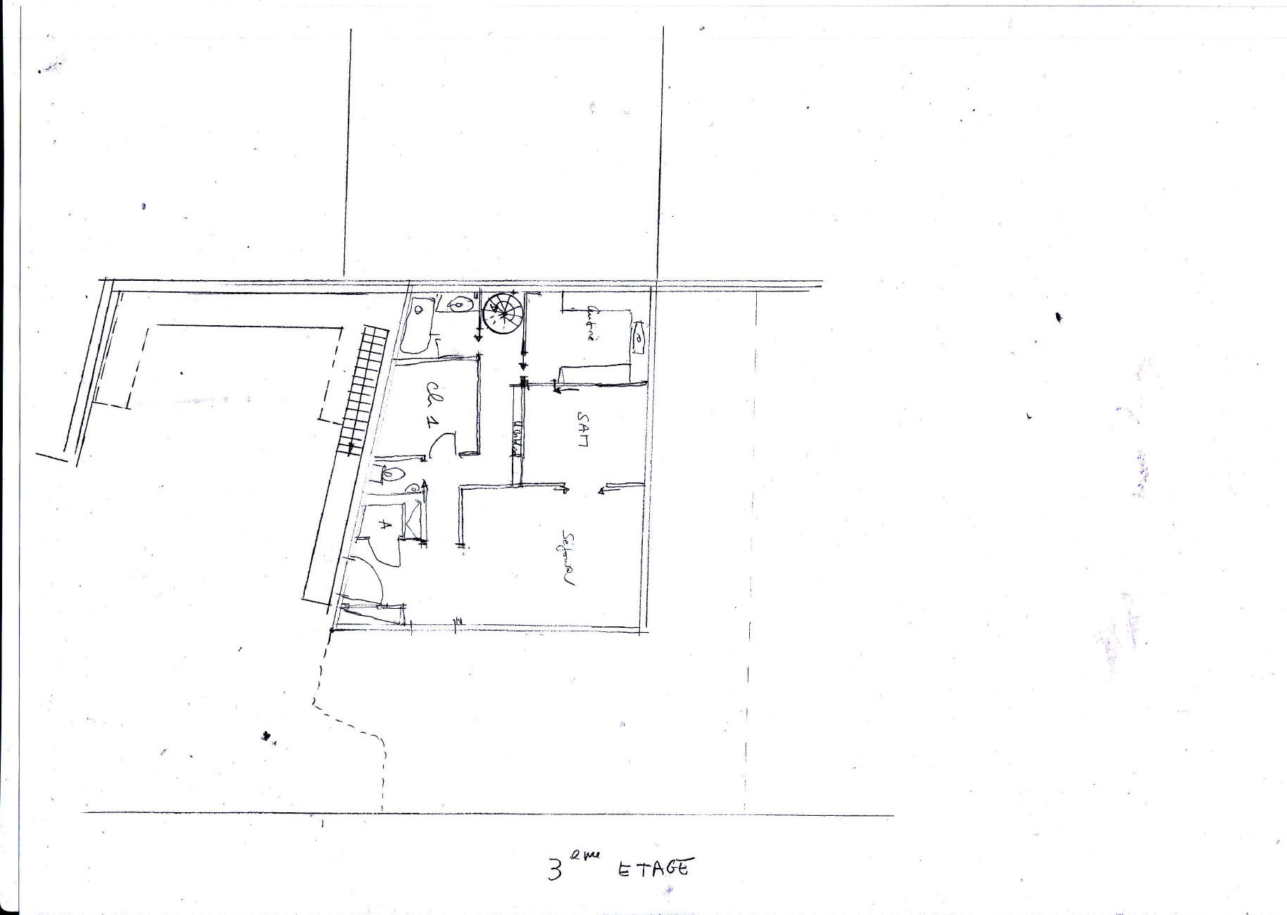
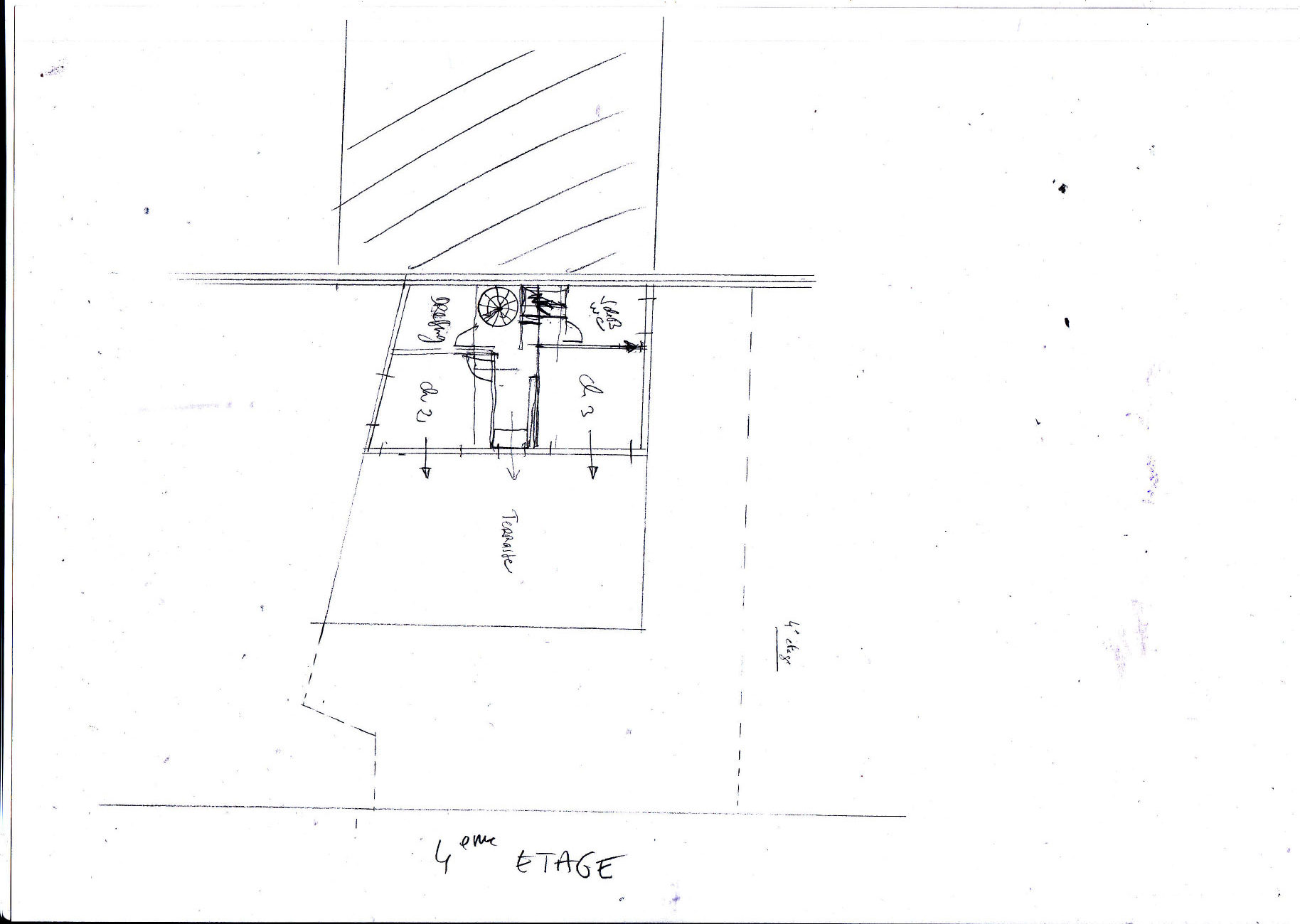
Le projet a des parkings en sous-sol ,2 duplex en rez de chaussée et 1er étage qui donne sur jardin et cour d’arrivée, un appartement au 2éme étage avec terrasse et un duplex aux 3/4éme étages avec terrasse.
Un Ascenseur depuis le sous-sol dessert les différents niveaux ainsi qu’un escalier extérieur et passerelle pour accéder aux logements.
La structure est béton en sous sol et en charpente métallique en étages avec des façades verre, aluminium et bardages, émalit.
 
								 
								 
								 
								 
								 
								 
								 
								 
								 
								 
								 
								 
								 
								 
								