L’histoire et le lieu :

C’était devenu une ruine lors de ma dernière visite avec ma sœur Hélène en 2006 .On le sait en France lorsqu’on ne reçoit plus de taxe foncière et d’habitation.
Cette petite maison venait d’un héritage fait à mon père par sa sœur aînée qui fut mariée à un homme de ce village que je n’ai pas connu et venu à Paris pour gagner sa vie, selon l’expression consacrée.
Adolescent avec mon Père et mon frère nous sommes allés pour la première fois en 1963 ou 64 avec la première voiture de la famille que venait d’acheter notre père pour nous en vacances dans une maisonnette dans un village prés de Saint Flour dans le Cantal à environ 70 km.

La maison devint ruine 

Dés qu’on arrive en Haute Loire la nature et la couleur de la pierre de l’habitat change, la pierre est dorée et claire, schisteuse. Après avoir longé la rivière on arrive à la petite bourgade d Auzon pour démarrer une longue montée au milieu des bois de pins avec des villages et des pâtures pour arriver sur un plateau à 750m d’altitude ,la petite route qui nous mène au village de Riols n’est plus goudronné ,une surface sablonneuse mais roulante .On traverse des bois et on arrive après être passée devant l’ancienne école désaffectée mais occupée vient  nous mener à la maison fermée depuis des années .
C’est une petite maison avec un étage. une grande pièce en bas et une autre au 1″‘étage sous la charpente, un petit devant de porte avec un puits et un petit bâtiment avec un étage; peut-être pour quelques chèvres puis un assez grand terrain en pente. Aussi mitoyen à la maison une parcelle vide ou un ancien bâtiment disparu. L’ensemble est orienté plein sud avec au loin les bois de pins argentés qui permettent de belles balades jusqu’au ruisseau à truites par les chemins de desserte.

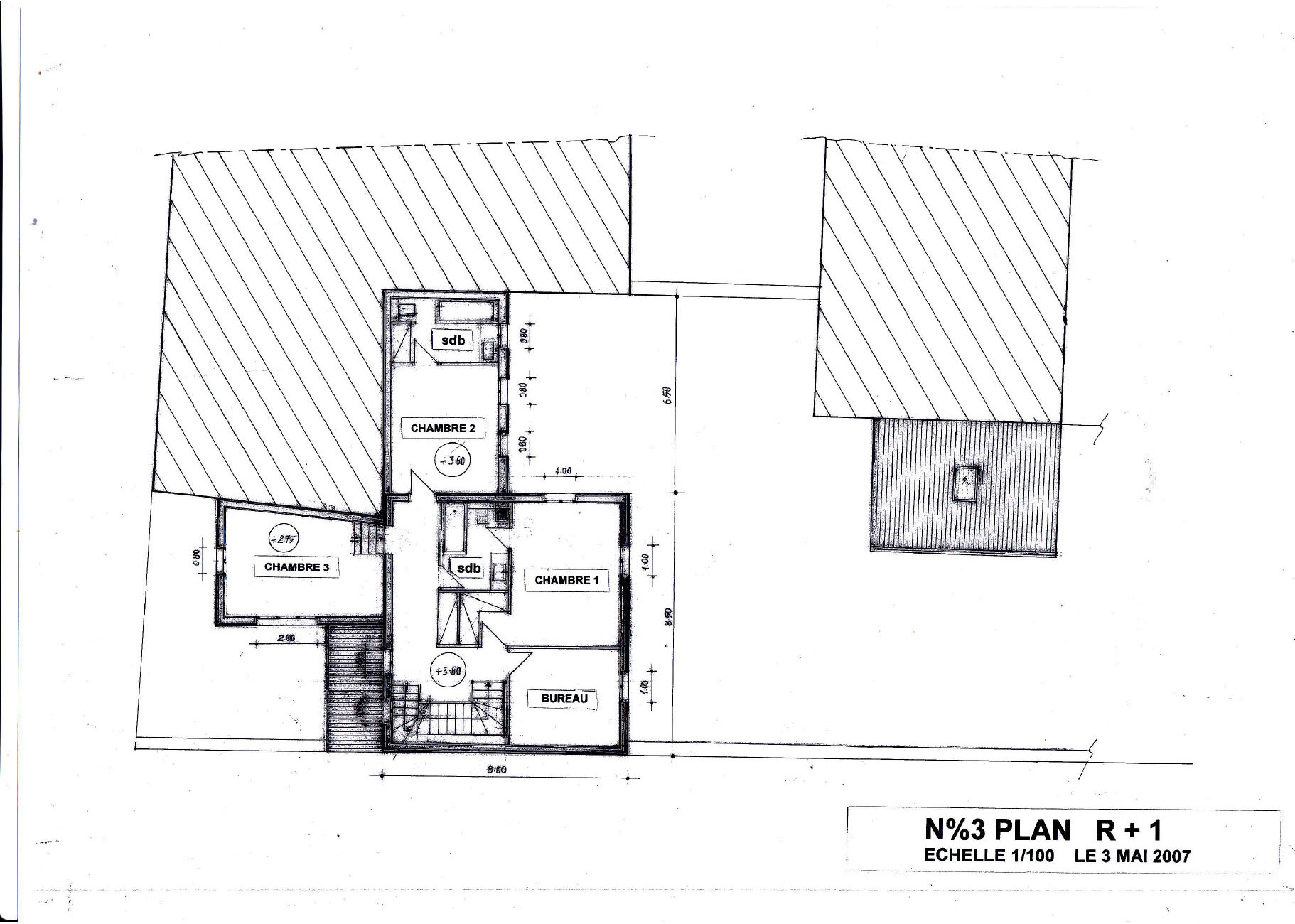
Le projet sur la maison en ruine :

J’ai décidé de faire un permis de construire qui fut donné par les services compétents d’Issoire pour la transmettre à des personnes qui seraient à la recherche d’un endroit hors des  grandes migrations en bordure des bois pour reconstruire une petite résidence secondaire ou permanente pour des gens à la retraite .
Le projet fut donc déposé dans 2 agences immobilières à Brioude et à Issoire pour un prix défiant toute concurrence, juste pour couvrir les frais (quand on obtient un permis il faut payer à l’état immédiatement des sommes calculées par l’administration .)
Le dossier montre quelques photos du lieu en état de ruine et le projet dessiné .Au premier étage une ossature bois a été proposée avec revêtement extérieur en Mélèze. Le petit bâtiment annexe a été traité dans le même esprit. Le projet  au rez de chaussée comporte:  garage, séjour et cuisine, toilettes , un escalier mène au 1er étage pour distribuer 3 chambres et 2 salles de bains. Le petit bâtiment extérieur est un atelier/bureau.