La demande 

Un jour un appel téléphonique du couple qui m’avait confié la transformation de leur appartement Bd de Clichy à Paris 75009 quelques années auparavant.
Ils me demandent de m’occuper de dresser un projet pour leur future maison de campagne située dans un hameau prés de Château Thierry à l’Est de Paris qu’ils venaient d’acheter en l’état.

L’état des lieux 

Une visite sur place est organisée; la maison  comporte un corps principal et une autre plus petite (ancienne porcherie) avec un terrain assez grand.

Le projet

La visite montre que des travaux importants sont à réaliser compte tenu du programme souhaité : Grand séjour, salle à manger, cuisine ,5 chambres avec salles de bains et WC, Atelier d’activités, jardin .
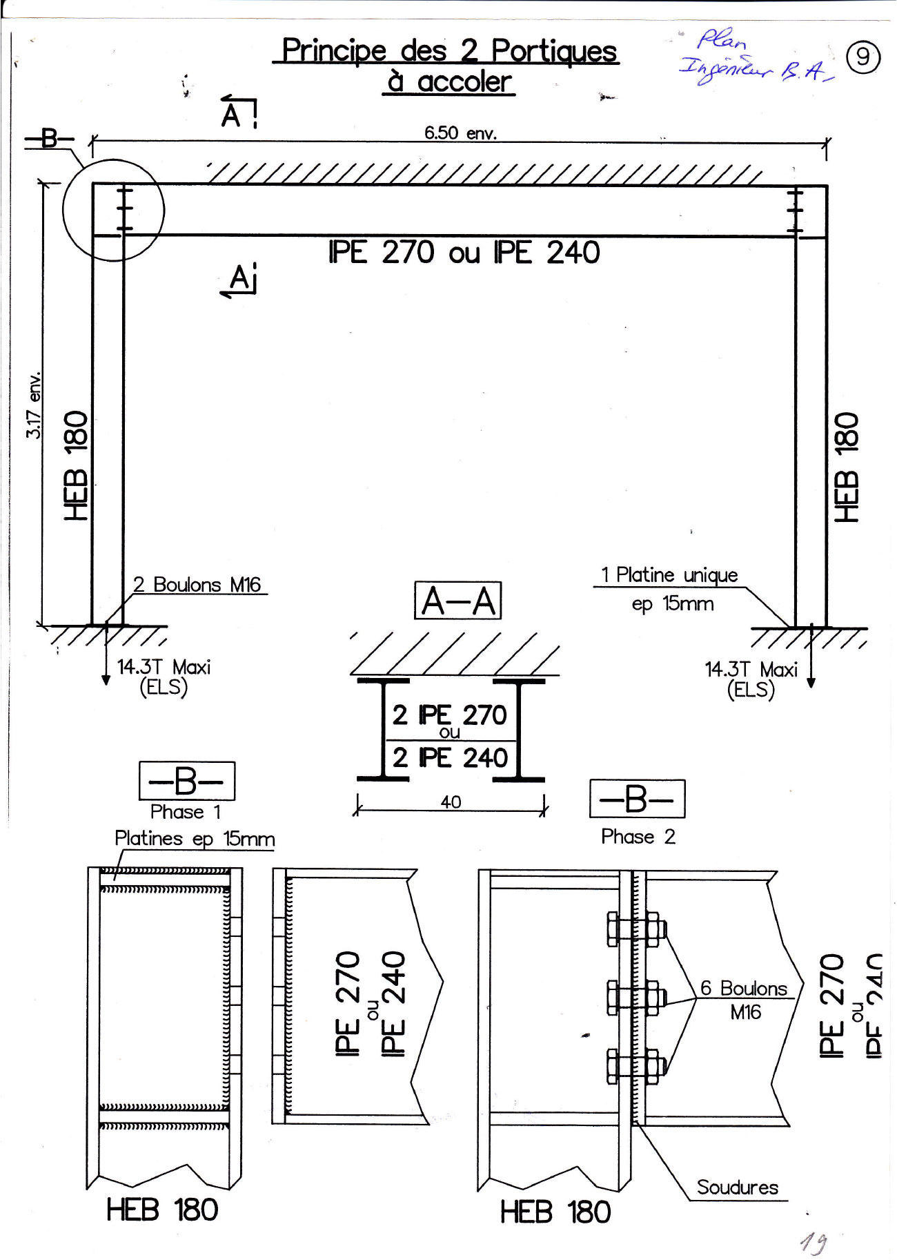
Pour parvenir à réaliser un grand salon il faut supprimer un mur entre 2 pièces dont l’une sera aussi ouverte par des fenêtres sur le jardin mais la difficulté est qu’au dessus il y a un mur en pierre toute hauteur jusqu’au faitage.

D’où mise en œuvre d’un double portique métallique avec habillage par des demi-poutres en bois .

La chambre des occupants sera au-dessus du salon avec vue sur jardin, d’où la création d’un escalier depuis le salon.

Ouvertures de fenêtres en pignon et sur les façades. Création d’une cheminée sur mur mitoyen à la salle à manger . Réhabilitation de la maison annexe qui fut une ex-porcherie en mauvais état.

En extérieur sur la maison principale un escalier en bois avec galerie pour distribuer 2 pièces, une chambre et atelier .

Installations techniques : fosse septique, chauffage central au mazout. Ventilation forcée mise au point des conduits cheminées contigus. Aussi pose de drains extérieurs sur rue à cause de la présence d’eau en cas de forte pluie.

A l’extérieur aménagement du jardin avec l’aide d’un paysagiste ami du couple.
Monsieur du couple aime la décoration. Un certain nombre de choix d’objets et couleurs sont les siens mais pour l’essentiel le projet initial s’est réalisé.

Sol en ciment lissé et murs avec des tons colorés. Usage du bois pour habiller certaines salle de bains et tous les meubles de cuisine .

Documents 

Les photos du début montrent l’état final après travaux et habité puis des documents graphiques du projet des plans et certains croquis .
En dernier quelques photos de l’état des lieux prises lors de ma première visite.