Des projets personnels dans le domaine de l'architecture depuis 1976.
  • A PROPOS
  • ACTIVITÉS DU SITE
  • CONTACT
Charles Rod Devernieres
  • Accueil
  • A Propos
  • Projets solaires
  • Architecture intérieure
  • Magasins
  • Maisons Maroc
  • Maisons de Campagne
  • Bureaux & Activités
  • Blog

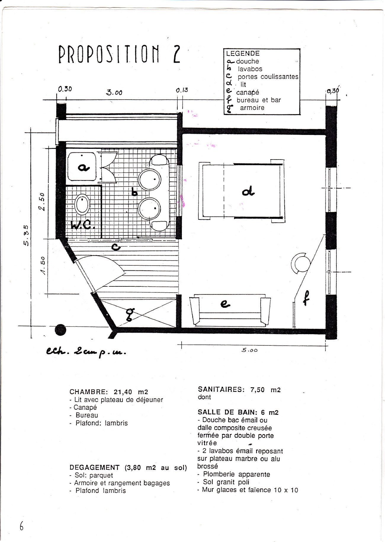
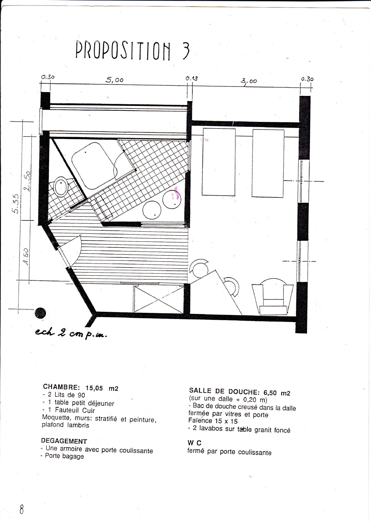
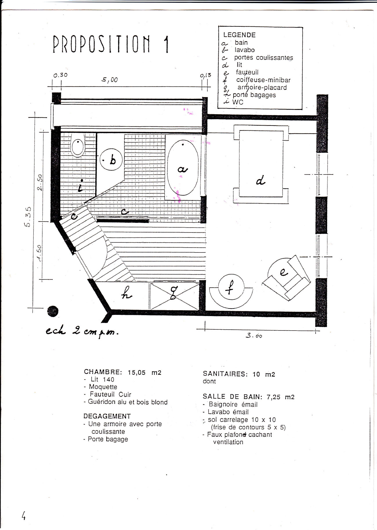
Chambre d’hôtel

  • Previous ProjectAgence avis 4 etoiles a Paris

  • Next ProjectConcours Pan bureau

Share Tweet Share Pin

© 2026 Charles Rod Devernieres. Mentions légales
Ce site a été conçu et réalisé par : Webmaster Wordpress Paris

Des projets personnels dans le domaine de l'architecture depuis 1976.
  • Accueil
  • A Propos
  • Projets solaires
  • Architecture intérieure
  • Magasins
  • Maisons Maroc
  • Maisons de Campagne
  • Bureaux & Activités
  • Blog
  • A PROPOS
  • ACTIVITÉS DU SITE
  • CONTACT